Premium showroom space to rent in Solihull.
Looking to expand or launch your business in a high-visibility location?
This spacious 2080 sq ft ground floor commercial unit is now available on a leasehold basis, offering the perfect canvas for retail, office, or showroom use.
Key features
- Ground floor access with excellent street frontage
- Generous 2080 sq ft of flexible open-plan space
- Suitable for a variety of commercial uses
- Ready for customisation to suit your business needs
- Nearby parking and transport links
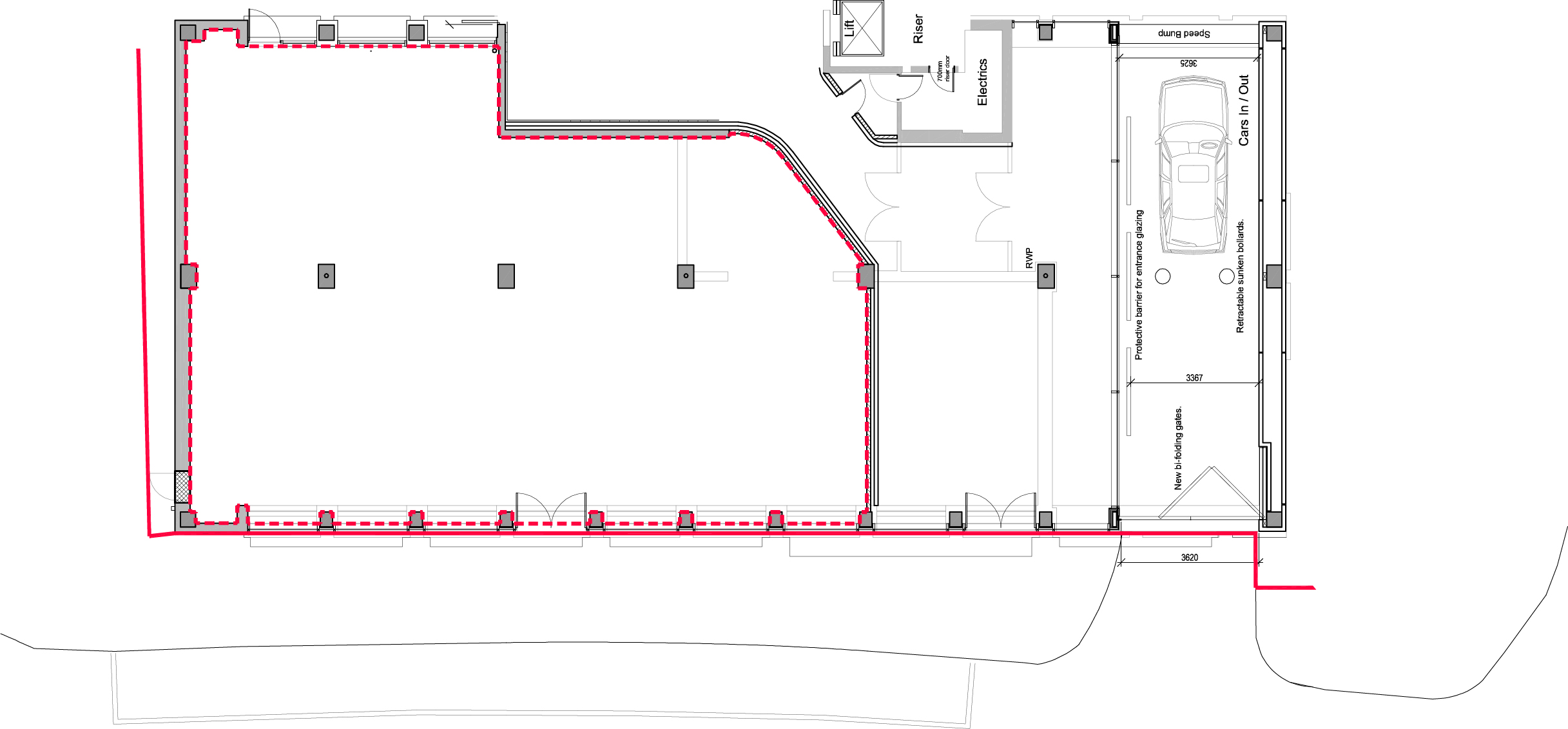
Floorplan

Enquire now
Please submit your details below